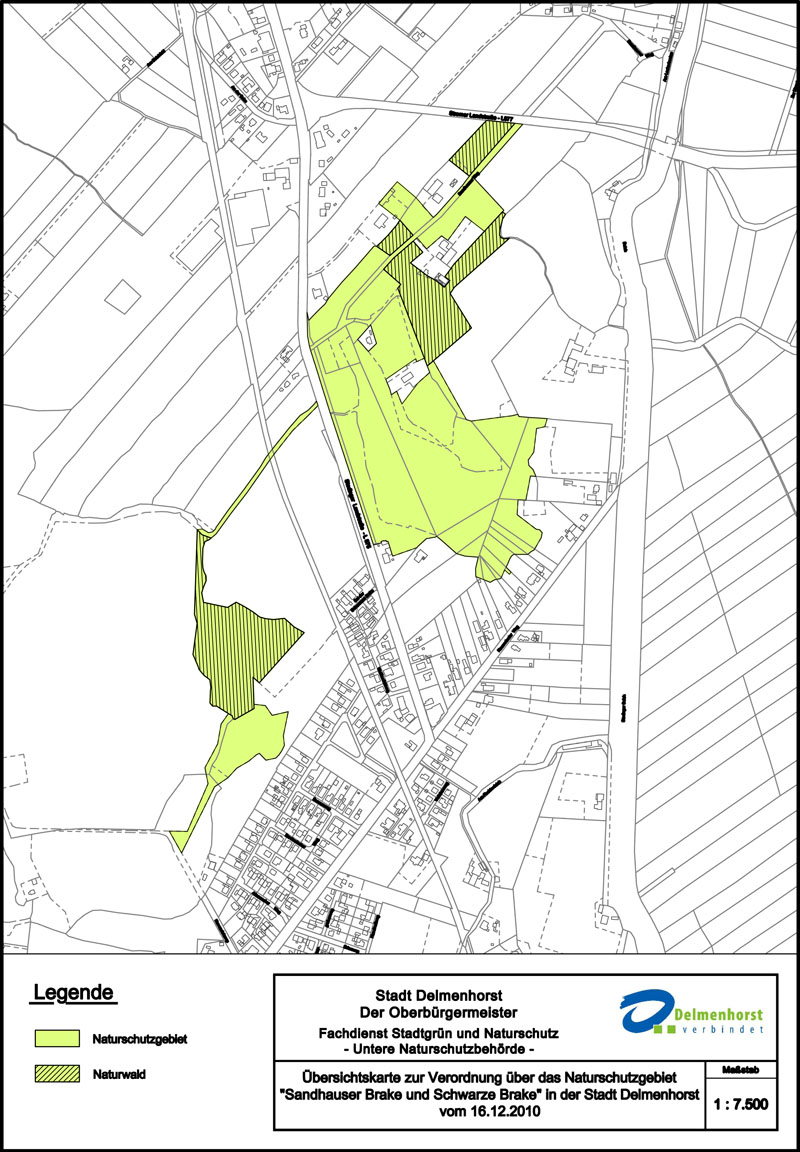
Amtliche Verordnungskarte zum Naturschutzgebiet "Sandhauser Brake und Schwarze Brake"
(NSG WE 277)
Zum Drucken und zur Detailansicht stehen Ihnen auf die pdf-Versionen der Verordnungskarten zur Verfügung:
Übersichtskarte 1:7.500 (460 KB)
Verordnungskarte 1:5.000 (605 KB)
---------------------------------------------------------------------------------------
Verbindlich sind für alle Schutzgebiete die im Amts- bzw. Ministerialblatt veröffentlichten Verordnungen bzw. Karten.
Naturschutzgebiet "Sandhauser Brake und Schwarze Brake"
Alle Naturschutzgebiete (NSG) Niedersachsens
Sie haben verschiedene Möglichkeiten, ein NSG zu finden:
Artikel-Informationen
Nds. Landesbetrieb für Wasserwirtschaft, Küsten- und Naturschutz
Göttinger Chaussee 76 A
D-30453 Hannover

